阿斯卡五通管接式电磁阀检测方式,SCG356B434V 24VDC
一般说明
该阀门已通过机构,可用于燃油安全关闭
在N.C.港口服务。 N.O.端口通常提供
在关闭循环期间返回油预热器。该
HOV13可带或不带阀门密封程
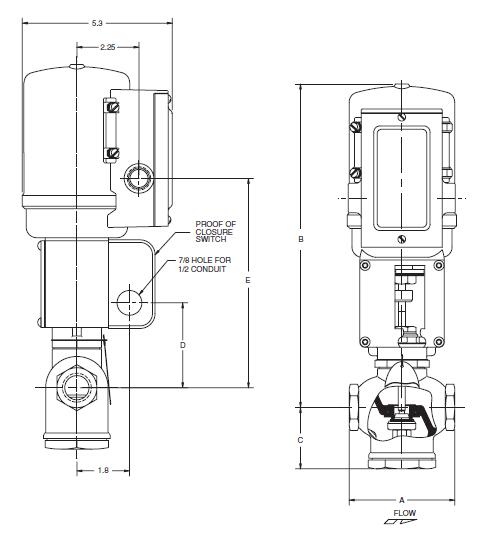
互锁(FM Proof of Closure)。所有阀门都配有
辅助开关:一个完整的SPDT开关,7.5A @ 120V,3.75A @ 240V,
(较大900VA)。 开关在通电行程末端启动(不可调)。
闭合开关的证明(阀门密封程联锁):
可选出厂设置非现场可调SPDT开关,15A @ 120V,
7.5A@240V(较大1800VA)。
液体:燃油
60 SSU的2号燃油
300 SSU的4号燃油
5000 SSU的5号燃油,
5000 SSU的6号燃油(加热)
开放时间:7-9秒
关闭时间:长1秒
注意:开启时间增加20%,50Hz

附件:类型1通用
环境温度:-10˚F至125˚F(-23˚至52˚C)
流体温度:较大267˚
车身/饰边:青铜,300#螺丝
密封材料:PTFE
端口尺寸:13/32“
HOV13是一种调的提升式青铜体
安全阀,电液操作
提供的燃油开关控制。弹跳
干式导向聚四氟乙烯座椅在七个之内开启
几秒钟的电源应用并牢牢关闭
电源中断一秒钟。
带防尘罩。
电动液压执行器由泵应用组成
压力连接到阀杆上的隔膜。它的
动力装置浸入油中并密封,
不需要调整或服务。中风受控制
行程限位开关和电磁安全阀。该
单元旋转,便于安装。双线连接
通过1/2“螺纹导管接线盒是标准的,所有
单元配有辅助开关。

阿斯卡五通管接式电磁阀检测方式,SCG356B434V 24VDC
021-39526589
网址:www.qiant.net
地 址:上海市嘉定区嘉涌路99弄
6号楼713室