世格先导滑阀技术数据,EF8401B101 24VDC
一般说明
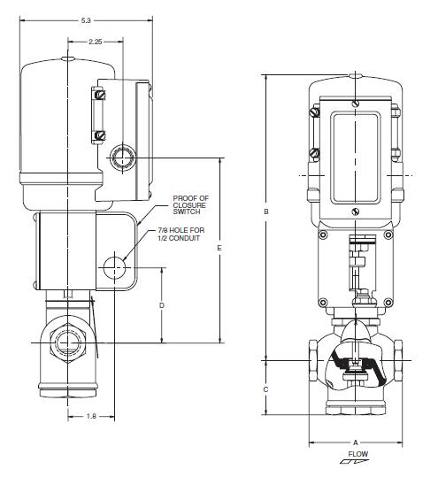
HOV1是一种传动式球形燃油阀
带有一个快速打开的杆导向座椅。 这个
双向常闭青铜安全截止阀
具有弹簧加载的阀杆,在断电时,
将聚四氟乙烯座椅牢牢地关在一个座位内
。 HOV1可带或不带阀门密封
程联锁(FM关闭证明)。
电动液压执行器由泵应用组成
压力连接到阀杆上的隔膜。 它的
动力装置浸入油中并密封。该
HOV不需要调整或服务。 中风是
由行程限位开关和电磁控制
安全阀。 该装置旋转360˚便于安装。

通过1/2英寸螺纹导管进行双线连接
接线盒是标准配置,所有装置均配备
辅助开关和防尘罩。
辅助开关:一个完整的SPDT开关,7.5A @ 120V,3.75A @ 240V,
(较大900VA)。 开关在通电行程末端启动(不可调)。
闭合开关的证明(阀门密封程联锁):
可选出厂设置非现场可调SPDT开关,15A @ 120V,
7.5A@240V(较大1800VA)。
安装
可以安装执行器直立或水平安装
开关上面。
:
UL列出
FM
CSA:
1)标准C22.2 39“电动阀”
档案113070。

世格先导滑阀技术数据,EF8401B101 24VDC
021-39526589
网址:www.qiant.net
地 址:上海市嘉定区嘉涌路99弄
6号楼713室