SAF20E12Y1T330A-S12-A9,HYDAC安全阀组

描述
一般
HYDAC安全和关闭块
是一种液压配件元件
保护免受压力过大
流体侧和关闭和减轻
液压蓄能器。
它考虑了适用的安全性
法规符合DIN EN ISO 4413标准
和德国工业安全
监管(BetrSichV)。
HYDAC减压阀(DB12)
用于SAF系列。 这是一个直接的行动
提升阀中的减压阀
建筑开放性好
关闭特征。 这个版本
DB12符合要求
欧洲压力设备
带CE标志的指令(PED)
提供符合性声明
和操作说明。
1.1.2产品效益
紧凑的组件组合
大大简化了连接
累加器或消费者的
液压系统并提供
以下好处:
zz小的空间和维护
和安装需要。 像所有的
个别单位合二为一
块,相当少的管件
是必要的安装。
zz可以减少安装
时间。
SAF安全和关闭块包括
阀块,集成HYDAC
减压阀,主截止阀
和手动操作的压力释放
阀门和必要的压力表
除了提供连接
坦克连接。
另外还有一个可选的电磁阀
双向方向阀允许自动
蓄能器或消费者的排放
因此,液压系统
紧急情况或关闭。
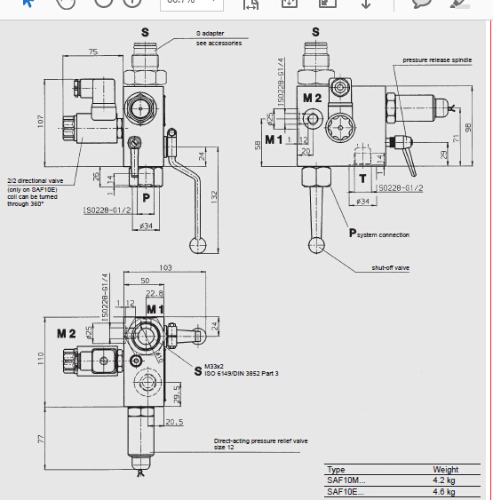
1.3。 PORTS
安全和关闭块有
以下端口:
S - 液压蓄能器连接
P - 泵连接
将SAF连接到
系统
T - 坦克连接
通向油箱的管道必须
单独实施。
这确保了流量可以
被引导到坦克
减压时不加压
阀门DB12打开。
M1 - 可选配压力表
ISO 228 - G 1/4(SAF10,SAF8)
ISO 228 - G 1/2(所有其他)
M2 - 例如对于p0-Guard
ISO 228 - G 1/4(各种尺寸)
1.4。规格
1.4.1工作液
矿物油符合DIN 51524标准
1部分和2部分
(根据要求提供其他液体)
粘度范围
分钟。 10mm²/ s
较大。 380mm²/ s
过滤
较大。允许的污染程度
ISO 4406的工作液
Class 21/19/16或SAE AS 4059 Class 11。
因此,我们建议使用带过滤器
较保留率ß20≥100。
过滤器和常规的装配
更换过滤器
正确操作,减少磨损和
延长使用寿命。
1.4.2允许的工作温度
标准版本
-10°C ... + 80°C
(E版本的环境温度有限
到-10°C ... + 60°C)
其他要求
1.4.3较大运营压力
400巴
1.4.4带电磁阀的型号
压力释放
类型
电磁阀通过压力操作,
油浸式单冲程螺线管
按照VDE 0580.执行
带阳连接器的电磁铁
DIN 43650,一般工业标准
应用,可用于24 V DC和
230 V AC。
电压类型
直流电磁铁
当连接到交流电压时,
产生必要的直流电压
桥式整流器连接器的装置。
电压容差
标称电压的±15%
标称电流
取决于额定电压
24 V DC 0.80 A.
230 V AC 0.11 A
能量消耗
p20 = 18 W.
占空比
100%DC = CO(连续运行)
切换时间
根据符号,压力跨越
个别港口和流量
WSM06020Y:
开:50毫秒
关:35毫秒
WSM06020Z:
开:35毫秒
关:50毫秒
1.5。标准类型
1.5.1手动模型
压力释放阀
基本型号安全和关闭块
具有手动操作的压力释放
阀门,代码“M”,直接作用
减压阀。
尺寸:SAF10,SAF20,SAF32
1.5.2带电磁操作的型号
压力释放
E版的安全和关闭
块有一个电磁操作的双向
阀门自动释放压力
蓄能器和液压系统。
尺寸:SAF10,SAF20,SAF32
通常打开“Y”
zz各种类型的连接
蓄电池设计和制造商
可用 - 英制和公制
连接以及多种安装
并焊接乳头。
zz额外的阀门,如先导式操作
止回阀,流量控制阀和
组合流量控制和止回阀
可以安装到系统连接P.
Q [l / min]
p [bar]
DB12-CE p-Q图,见上面的
此阀门不能设置为阴影区域中的值


产品型号表:
2125856 SAF32E12Y1T400A 2123123
SAF32M12T350A 2122230 SAF32E12Y1T350A 3125142
SAF32M12T330A 2122231* SAF32E12Y1T330A 2120371*
SAF32M12T315A 2121136 SAF32E12Y1T315A 2122222
SAF32M12T300A 2120837 SAF32E12Y1T300A 2120834
SAF32M12T250A 2122233 SAF32E12Y1T250A 2122223
SAF32M12T210A 2120321 SAF32E12Y1T210A 2120318
SAF32M12T200A 2121135 SAF32E12Y1T200A 2122224
SAF32M12T150A 2121134 SAF32E12Y1T150A 2122225
SAF32M12T100A 2121129 SAF32E12Y1T100A 2122226
SAF32M12T070A 2122234 SAF32E12Y1T070A 2122227
SAF32M12T050A 2121137 SAF32E12Y1T050A 2122228
SAF32M12T035A 2121125 SAF32E12Y1T035A 2122229
SAF20E12Y1T330A-S12-A9,HYDAC安全阀组
021-39526589
网址:www.qiant.net
地 址:上海市嘉定区嘉涌路99弄
6号楼713室